Single Family Residences
Concept and Construction Documents BIM modelling for a residential gated community.
Project Overview
The project focuses on personalized layouts, energy efficiency, and functional space planning. Coordinated architectural, structural, and MEP modeling ensures smooth construction and cost control.
Designed to deliver high quality living environments with attention to detail and comfort.
| Client Profile | A boutique architectural firm based in Ohio |
| Location | Florida, USA |
| Industry | Residential |
| Inputs | PDFs, Sketches, Sketchup model |
| Deliverable | Architectural and Structural BIM Model, Approval drawings, Detailed Architrual Binder |
| Software Used | Revit, AutoCAD |
| Project Size | 300,000 Sqft, 32 single family houses |
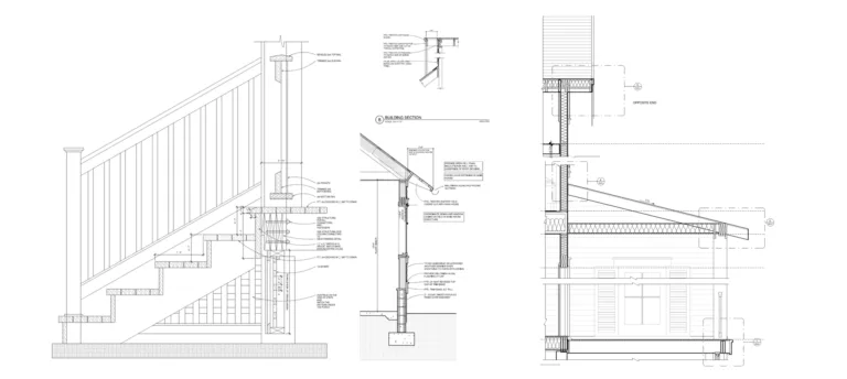
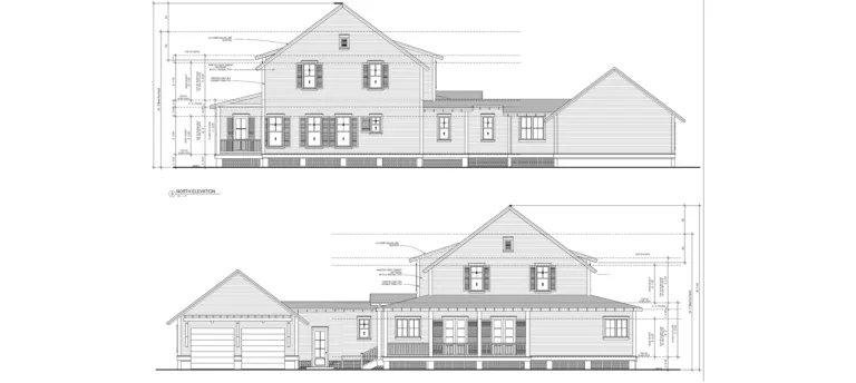
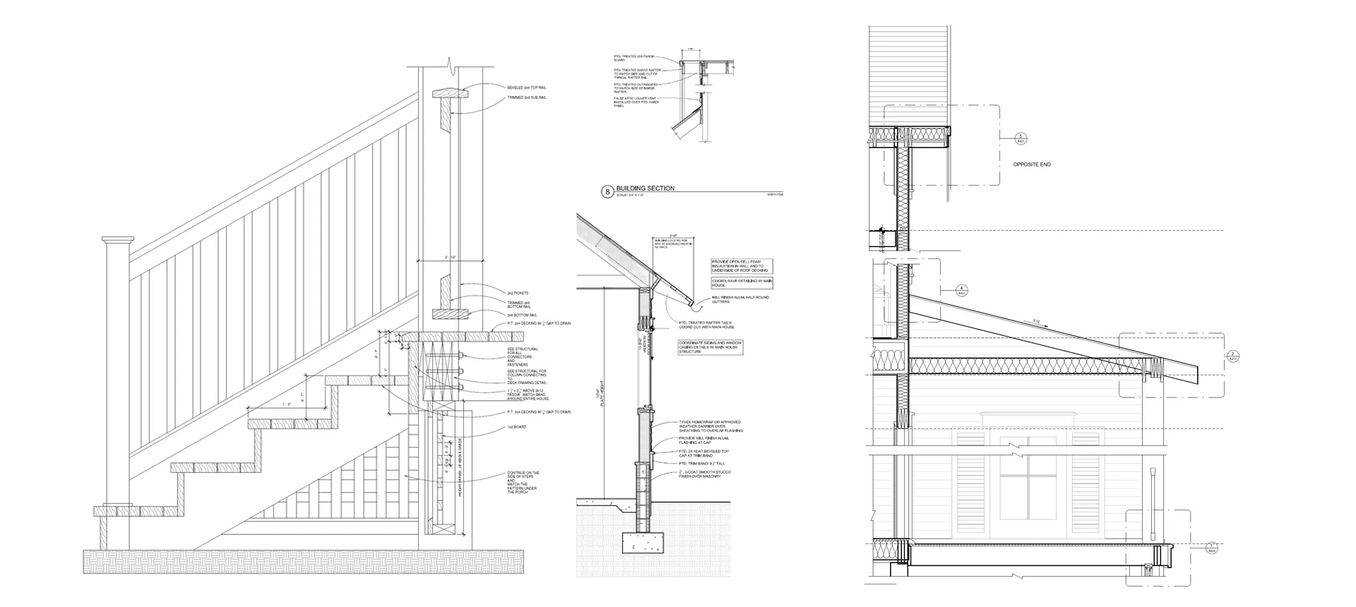
Contracted by a distinguished architectural firm headquartered in Florida, the Next Synergy Solutions team played a pivotal role in assisting the principal architect throughout the entire project lifecycle from initial concept development to delivering comprehensive construction binders. Our scope encompassed creating architectural, structural, mechanical, plumbing and electrical layouts seamlessly integrated through Building Information Modeling (BIM). This undertaking involved the meticulous design and coordination of 32 distinct houses, each belonging to one of six unique types.
Ready to Elevate Your Construction Projects?
At Next Synergy, we believe that the future of real estate and construction is digital, collaborative, and datadriven. Whether you’re planning a new project or looking to optimize your existing workflows,
we have the expertise and technology to make it happen.
View More Projects
Explore more of our cutting-edge projects, where innovation meets real-world impact
- All
- Commercial
- Community
- Data Center
- Education
- Healthcare
- Hospitality
- Industrial
- Infrastructure
- Interior Fitouts
- Residential
- All
- Commercial
- Community
- Data Center
- Education
- Healthcare
- Hospitality
- Industrial
- Infrastructure
- Interior Fitouts
- Residential




