Construction
Documentation
we deliver the documentation that contractors and authorities rely on to build confidently.
Book a Consultation
From Digital Design to On Site Execution
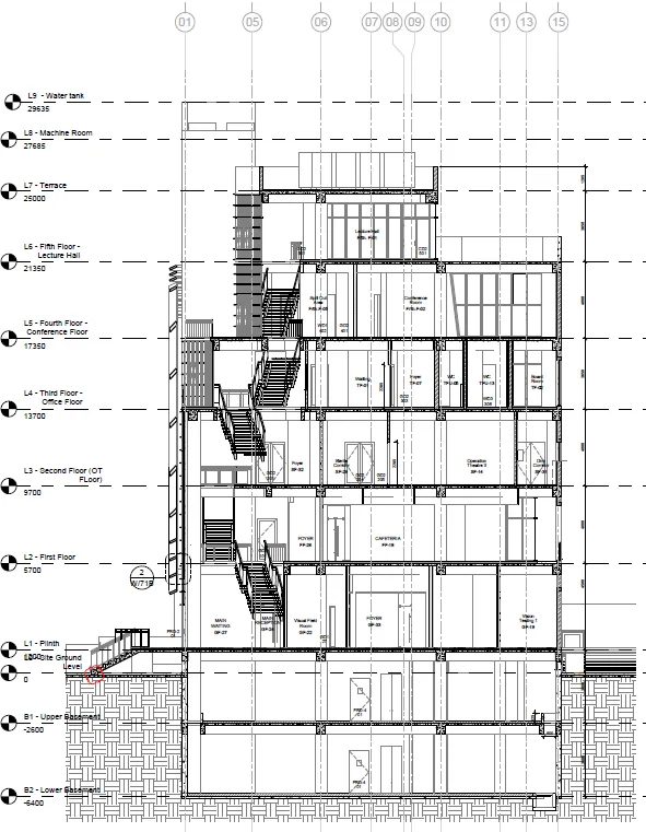
Construction documentation is where the rubber meets the road. With our expert Building Information Modeling Services, we extract, organize, and annotate construction drawings from detailed BIM models ensuring compliance with local codes, coordination across disciplines, and complete readiness for tender, permit, and build phases.
At Next Synergy, we transform fully coordinated BIM models into precise, permit ready, and construction optimized documentation. Our Construction Documentation services provide LOD 400+ outputs with shop drawing precision, contractor friendly annotations, detailed construction sheets, and coordination across disciplines helping your project move seamlessly from digital model to physical execution. We ensures your construction set speaks the language of the field.

Our Construction Documentation Services Include
LOD 400 BIM Modeling
We refine your model to include fabrication level detail, component IDs, joinery logic, and build sequences for walls, slabs, ceilings, doors, and more.
Full Sheet Set Compilation
Complete construction documentation: GA drawings, floor plans, RCPs, elevations, sections, wall types, enlarged plans, and detail callouts.
Annotated Drawings
Drawings are presented with proper line weights, symbols, legends, dimensions, keynotes, references, and title blocks ready for permitting and site use.
Permit Ready Documentation
We ensure all local building code compliance and AHJ requirements are incorporated into the drawings fire zones, exits, accessibility, HVAC clearance, and more.
Our Process: From Model To Site Construction Through BIM
At Next Synergy Solutions, we follow a structured, collaborative BIM process designed to empower architects and designers throughout every project phase. As a leading Construction Documentation Service Provider, our methodology blends precision, flexibility, and innovation to deliver high-quality results.
Model Audit and Scope Definition
We review your latest BIM model (from DD phase) and define required sheets, drawing index, detail levels, and compliance needs.
BIM Enhancement to LOD 400
We upgrade the BIM model with shop level details including brackets, anchor points, sleeve placements, joinery profiles, and tolerances.
Drawing Sheet Generation
Our experts extract views, apply templates, and populate sheets with annotations, dimensions, tags, legends, and references as per standards.
Multi Discipline Overlay Checks
We perform drawing level clash checks and ensure drawings represent real world coordination among MEP, structure, and architectural elements.
QA/QC Review
Every drawing undergoes a 2-level quality check graphical consistency, technical correctness, and sheet-to-model accuracy.
Final Package Submission
You receive fully organized Revit, DWG, and PDF packages with drawing registers, issue logs, and revision clouds ready for construction or permitting.

Advantages of Construction Documentation Services
Construction Documentation Services bring precision, clarity, and efficiency to every stage of design and construction. As a leading Construction Documentation Service provider, we ensure optimized project outcomes with fewer risks and delays.
Site Ready Sets
Our CD packages are designed for direct use on site clearly annotated, well organized, and easy to interpret. Field teams can follow them without guesswork, ensuring smooth construction execution. Every drawing is structured for real world buildability from the first brick to final fit out.
Fewer RFIs
With precise detailing and multi discipline clarity, contractors rarely need to raise RFIs for clarifications. This minimizes costly delays, avoids site disputes, and keeps the construction schedule on track. Our drawings answer questions before they arise on site.
Code Compliant
We embed jurisdiction specific building codes, fire safety norms, accessibility guidelines, and zoning rules into every sheet. This ensures smooth approvals from permitting authorities. You get drawings that are both constructible and regulation ready from day one.
Drawing Consistency
Our sheets follow strict standards for layering, line weights, dimensioning, and text styles. This results in a visually clean and technically accurate set of documents. Every drawing looks and feels familiar to contractors, reducing onboarding time and confusion.
Fabrication Ready Output
We structure all details, components, and quantities to align with downstream fabrication workflows. Whether it’s for shop drawings, steel detailing, or BOQ creation our CDs integrate directly into procurement and prefabrication processes, saving time and cost.
Fully Coordinated
We ensure every architectural, structural, and MEP element is harmonized across drawings. There are no clashes, omissions, or disconnected views each sheet is rigorously checked for alignment with the 3D model and actual field conditions. What’s drawn is what gets built.
Why Choose us for your BIM services ?
Cost-Effective Delivery – High-quality BIM modeling at competitive pricing without compromising precision.
Flexible Solutions – Tailored BIM services adaptable to diverse project scopes and client needs.
All-in-One BIM Hub – End-to-end BIM services from modeling to coordination, all under one roof.
Global Expertise – In-depth knowledge of international codes, standards, and cross-cultural workflows.
Timezone Advantage – Accelerate project timelines with round-the-clock productivity across global time zones.

Industries We Serve
Next Synergy Solutions delivers precise 3D Architectural Modeling Services across diverse sectors. As a leading BIM Modeling Services Providing Company, we support industry-specific needs with scalable, detail-rich digital solutions.
Healthcare
Education
Commercial
Residential
Hospitality
Industrial
Interior fitouts
Infrastructure
Community Buildings
Data Centers
Featured blog Posts
Stay ahead of the curve by reading our latest blogs based on real experience and the latest technology.
Frequently asked questions
1. What is your engagement model?
We offer three primary engagement frameworks, designed to align with varying project scopes, delivery timelines, and resource control preferences:
1. Dedicated Resource Model: A full-time allocation of BIM engineers, architects, or specialists—either as a standalone team with our internal project management or integrated into your existing project structure under your supervision.
2. Time & Material (T&M): Recommended for projects with evolving or undefined scopes. Engagement is governed by a pre-agreed hourly rate, with monthly invoicing based on actual man-hours consumed and detailed time logs.
3. Fixed-Price / Lump Sum Model: Best suited for well-defined deliverables. Upon receiving a detailed scope of work, we provide a comprehensive cost proposal covering all deliverables and associated timelines.
2. What cost advantage can I expect from your services?
Our objective is to deliver best-in-class solutions at highly competitive rates. Based on client feedback and benchmarking, our services typically result in a 40% to 50% cost savings compared to in-house teams or local service providers—without compromising on quality, accuracy, or turnaround time.
3. I’m in a different time zone—how do you handle communication and collaboration?
As a global delivery organization, we work seamlessly across time zones. Each client is assigned a dedicated team that aligns with their local working hours to ensure real-time collaboration. We guarantee availability for all scheduled meetings, reviews, and communication touchpoints to maintain smooth and efficient project execution.
4. At what stage can you get involved in a project, and is there a minimum project size?
We support all project phases including Concept Design, Schematic Design (SD), Design Development (DD), Construction Documentation / GFC, and As-Built Documentation. We believe in adding value at every stage, and for us, there’s no such thing as a small project—every engagement matters.
5. What are the qualifications of the team working on my project?
All team members assigned to your project are qualified Architects or Engineers with relevant domain expertise. We ensure that each resource has the technical & tools skills and industry knowledge required to deliver high-quality, accurate outputs.
6. How familiar is your team with my project’s local standards?
As a global BIM and drafting services provider, our teams regularly collaborate with clients worldwide. We have developed the expertise and flexibility to quickly adapt to your studio standards and ensure full compliance with local codes and design intent
Let’s Bring Your Vision to Life
Whether you’re in early design or preparing for construction, Next Synergy Solutions is your trusted partner in BIM excellence.
📧 Email: admin@nxtsyg.com
📞 USA: +1 315 636 5874
📞 Netherlands: +31 6 4578 3868

